飼料粉末噸袋拆包機:無塵環保高效智能拆包之首選!
來源:振泰機械-平 更新時間:2024-05-06點擊:0 次
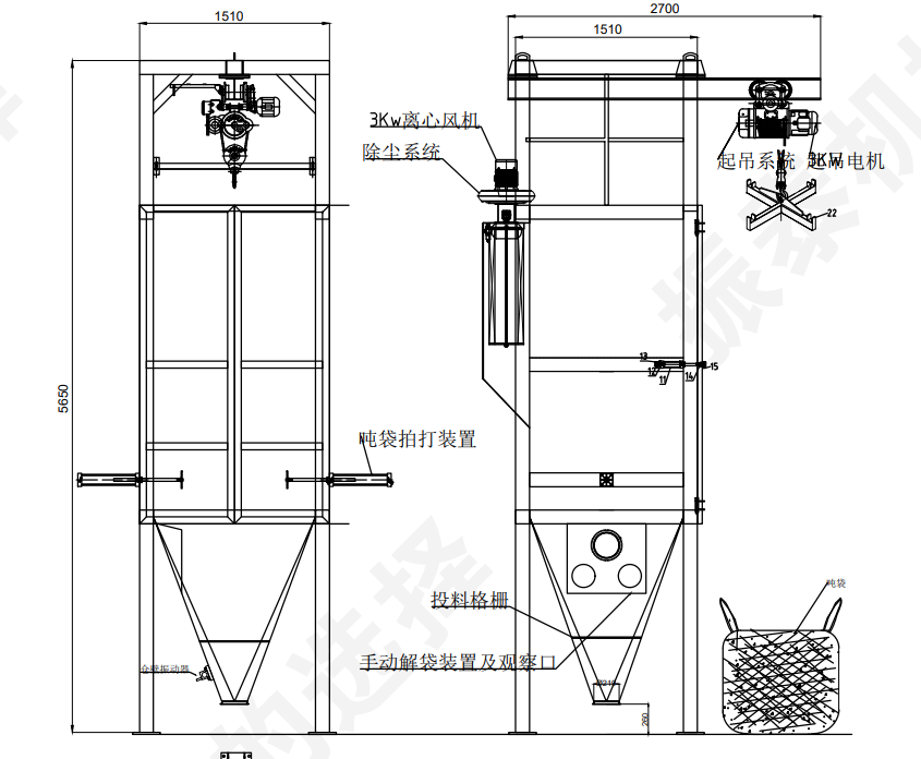
隨著現代工業技術的快速發展,飼料生產行業對設備的要求也日益提高。為滿足這一需求,飼料粉末噸袋拆包機應運而生,以其無塵環保、高效智能的特點,成為飼料生產企業的首選設備。

一、無塵環保,保障生產環境
粉料自動卸料噸袋投料站采用先進的無塵設計,確保在拆包過程中不會產生粉塵飛揚。這一特點不僅有效改善了生產環境,還降低了員工因長期接觸粉塵而產生的健康風險。同時,設備配備了高效的除塵系統,進一步保證了生產現場的清潔。
二、高效智能,提升生產效率
飼料全自動無塵拆包機具備高效智能的特點,能夠快速完成噸袋的拆包作業。設備采用自動化控制系統,可實現對拆包過程的精確控制,從而確保生產過程的穩定性和連續性。此外,設備還具備智能診斷功能,能夠實時監測設備的運行狀態,及時發現并處理潛在問題,確保生產的高效進行。

三、適應性強,滿足不同生產需求
飼料粉末噸包投料站可處理粉狀、顆粒狀、小塊狀的噸袋拆包卸料輸送作業,適用于不同規格和材質的噸袋,能夠滿足飼料生產企業的需求。設備還具備靈活的調整功能,可根據生產現場的實際情況進行調整,確保拆包過程的順利進行。
四、操作安全,降低人工成本
飼料粉末噸袋拆包機采用人性化的操作界面和簡潔的操作流程,使得員工能夠迅速掌握設備操作技能。這大大降低了企業對新員工的培訓成本,同時也減少了因操作失誤而產生的生產事故風險。飼料粉末噸袋拆包機在設計上充分考慮了生產安全因素,采用了多重安全防護措施。設備配備了緊急停機按鈕和過載保護裝置,確保在設備出現故障或異常情況時能夠迅速停機,避免造成更大的損失。此外,設備還具備過載保護功能,能夠在設備負載過大時自動降低運行速度,保護設備免受損壞。

五、易于維護,降低維護成本
飼料粉末噸袋拆包機采用模塊化設計,使得設備的維護變得更加簡便。設備的各個模塊都具備獨立的拆卸和更換功能,方便維修人員快速定位并解決問題。此外,設備還采用了高品質的耐磨材料和先進的生產工藝,確保了設備的耐用性和穩定性,降低了企業的維護成本。
六、廣泛應用,提升飼料行業生產水平
飼料粉末噸袋拆包機適用于各類飼料生產企業,包括畜禽飼料、水產飼料、寵物飼料等。另外在石油化工、原料藥、塑料、碳黑、礦業、食品添加劑,水泥等行業中廣泛使用,結構簡單,生產成本低,操作簡單方便,性價比高,自帶收塵,讓粉塵不再飛揚。通過使用該設備,企業不僅能夠提高生產效率、降低生產成本,還能夠改善生產環境、保障員工健康。


總之,飼料粉末噸袋拆包機以其無塵環保、高效智能的特點成為飼料生產企業的首選設備。其優越的性能和廣泛的應用范圍不僅滿足了企業的生產需求,也為飼料行業的發展注入了新的活力。隨著技術的不斷進步和市場需求的不斷變化,相信飼料粉末噸袋拆包機將在未來發揮更加重要的作用,為飼料行業的繁榮和發展做出更大的貢獻。
轉載地址:http://m.shuiyang.net.cn/news/slfmddcbjwchbgxzncbzsx.html
標簽: 飼料粉末噸袋拆包機 粉料自動卸料噸袋投料站 飼料全自動無塵拆包機 拆包機 震動篩
- 上一篇:除鐵器振動篩具體用途和適用范圍
- 下一篇:圓形振動篩在寵物食品行業領域的重要作用
- ·噸包投料站 2025-02-18
- ·檸檬酸鎂臥式氣流篩 2024-11-21
- ·直線震動篩 2023-02-20
- ·直排式震動篩 2023-02-20
- ·高頻震動篩 2023-02-20
- ·超聲波振動篩 2023-02-20
- ·三次元振動篩 2023-02-20
- ·電池正負極材料震動篩 2022-08-31
- ·pp塑料振動篩 2022-03-02
- ·二層不銹鋼震動篩 2022-02-24
您可能還想了解的產品:
- ·蠡縣氧化鎂粉體臥式氣流篩產品發貨公告 2024-05-06
- ·專為輕質氧化鎂粉體而生:攻克輕、粘、揚塵難題的智能氣流篩分系統 2024-05-06
- ·重慶毛油過濾震動篩產品發貨通知 2024-05-06
- ·油脂過濾振動篩:高效凈化,提升油脂品質 2024-05-06
- ·超聲波搖擺篩在玻璃微珠精密分級中的關鍵技術突破與應用研究 2024-05-06
- ·奶茶原料脫水革命:不銹鋼直線振動篩如何提升生產效率與食品安全 2024-05-06
- ·從電動篩到氣動篩,看粘土氣動馬達振動篩如何破解篩分難題 2024-05-06
- ·如何利用三次元振動篩優化電池黑粉的篩分工藝? 2024-05-06
- ·如何選擇適合尿素輸送的真空上料機? 2024-05-06
- ·敞開式噸袋拆包機 vs 密閉式噸袋拆包機:核心區別與選型指南 2024-05-06
您可能還想查閱的文章:

















